CASA LL

CASA LL • Americana – SP 

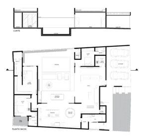
Residencial Ipês Amarelo

Área do terreno: 430.92m²

Área da construção: 282.93m²

A Casa LL foi projetada utilizando um sistema construtivo ainda pouco comum na construção civil residencial em nossa região: o sistema pré-fabricado. Cada cliente é único, e este nos trouxe um conhecimento valioso sobre essa metodologia, expressando o desejo de ter uma casa que adotasse essa técnica. Isso nos permitiu implementar uma abordagem inovadora na execução do projeto.

Optamos por uma solução construtiva de baixo impacto, com o tempo de entrega reduzido e com baixa necessidade de manutenção. Além disso, asseguramos que o projeto apresentasse um estilo único, equilibrando funcionalidade e design contemporâneo. Em parceria com a Sudeste Pré-Fabricados, entregamos um projeto personalizado, alinhado às expectativas e desejos do cliente.