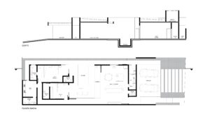
CASA JF

CASA JF – Nova Odessa-SP

Jardim Recanto das Águas

Ano 2024

Área do terreno: 342.15m2

Área de construção: 195.02m